HULK XIV

Conçu Pour des Capacités de Charge Exceptionnelles.

Le HULK XIV établit une nouvelle référence dans le domaine des monte-charges et monte-voitures. Sa suspension 1/4 permet de gérer des charges exceptionnelles de 2000 kg à 9 000 kg, avec des vitesses atteignant 1,6 m/s. Cette performance unique dans sa catégorie s’adapte parfaitement aux configurations avec ou sans machinerie.

  • 1.SPÉCIFICATIONS
  • 2.DIMENSIONS
    Dimensions non disponibles
  • 3. DESIGNS DE CABINE
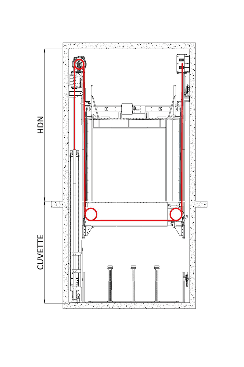
  • 4.HDN ET CUVETTE